Ref: JG - Norwood Hill Road

Charlwood, Horley, Surrey
Offers in Excess of £875,000 REF: PB0463
Sold
Open demo
Enquire about this property today
Photo thumbs - 1
Photo thumbs - 2
Photo thumbs - 3
Photo thumbs - 4
Photo thumbs - 5
Photo thumbs - 6
Photo thumbs - 7
Photo thumbs - 8
Photo thumbs - 9
Photo thumbs - 10
Photo thumbs - 11
Photo thumbs - 12
Photo thumbs - 13
Photo thumbs - 14
Photo thumbs - 15
Photo thumbs - 16
Slider Form

Enquire about this property

Location: Norwood Hill Road, Charlwood, Horley, Surrey, United Kingdom
A Wonderfully Private, 17th Century, Stunning Cottage set in a 1.6 Acre plot with Views across Fields and Farmland. Annexe Potential

Four Bedrooms or Three with Master Suite & Dressing Room
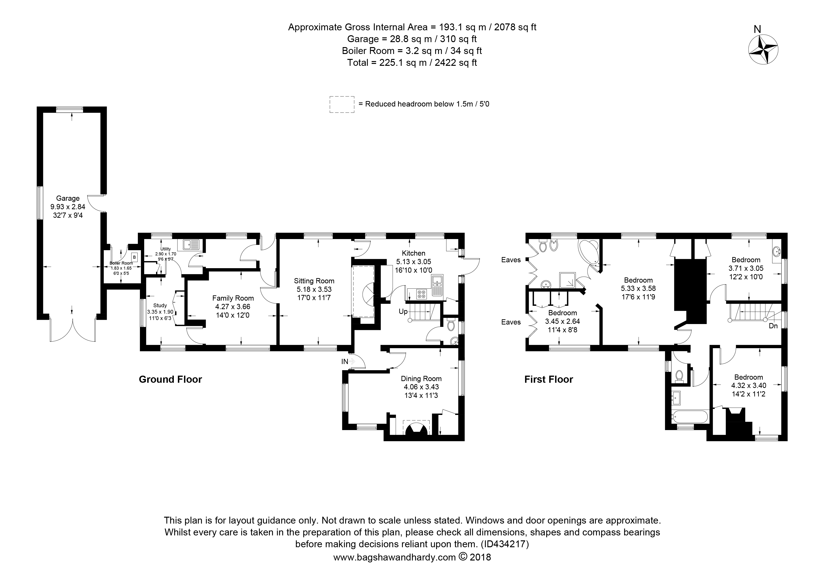
Four Reception Rooms | Library/Study | Utility Room | Boot/Dog Room | Attached 33’ Garage | Circa 1.6 Acres of Land | Potential to Annex the West Wing for Downstairs Living | Views Across Fields | Rural Location


Spencers (formally called Pound Cottages) is believed to have been built in the 17th Century and located down a long, unsurfaced private lane, shared with the local farmer who also owns the surrounding fields. Glowing with character and charm it spans many centuries nestled squarely in a large 1.6 acre plot.

The house offers over 2400 square feet including the boiler room and attached garage. You can see from the floorplan that the west wing could be annexed off to create independent living on the ground floor whilst retaining a large majority of the house and second storey.


The Facts...


The Cottage;
2422 Square Feet | Detached | Four Bedrooms | Two Bathrooms | Four Reception Rooms | Downstairs WC | Inglenook Fireplaces | Built Circa 1680 | Utility Room | Boot Room | Boiler Room | Attached Garage

Outbuildings & Facilities;
Tandem Double Garage (33 feet) | Two Sheds | Greenhouse | Summer House | Patio Areas | Vegetable Garden | Paddock | Garden | Driveway | Parking

Land;
Circa 1.625 Acres | Surrounded by Protected Fields (Agricultural & Equestrian Uses) and Woodland

History;
The current owners have lived here for 36 years. We have been told that Spencers originally had planning permission to extend into and above the garage. We have tried to verify this and cannot find the documentation for planning application MO/75/0876 online even though there is a record. We believe you would require “listed building consent” for such an application now.

Location Information...


Gatwick Airport 4 miles | Horley 3.4 miles | Crawley 4 miles | Reigate 5.6 miles | Dorking 9 miles | Horsham 10 miles | London (central) 30 miles | Brighton 25 miles |

(Road Distances - Approximate)

Norwood Hill is a part of Charlwood that is not adversely affected by the Gatwick Flightpath. Charlwood itself is a medieval village that offers a good school, great nursery, pubs, shops, medieval church, village hall and a 4.5 acre recreation ground. 0.8 miles up the road is the newly refurbished Fox Revived a popular local eatery and gastro pub.

Located nearby are many public footpaths, bridleways and ancient woodlands that are free to roam and great places for dog walking. Many livery yards are also nearby for people wishing to keep or ride horses.

Schooling is provided for extremely well locally with “Charlwood Village School” which now takes pupils up to comprehensive age. Oakwood in Horley is the natural progression for most children locally with travel to the school, from Charlwood being provided for by the local authority. Reigate School is also a popular choice with many parents locally.

For Toddlers and preschoolers, there is Bear & Bunny Nursery on the Horley Road coming out of Charlwood.


Additional Information...


Parking Arrangements: Garage and driveway.
Council Tax Band: G
Vendors position: Found
Tenure: Freehold
Grade II listed: 1983 (Surrey CC)
Age: Circa 1640 (17th Century)
Stamp Duty 1st Home: £33,750
Stamp Duty 2nd Home: £60,000

County: Surrey
District: Mole Valley
Parish: Charlwood
Date first listed: 07-Apr-1983
1.2% Offer Increase negotiated.
5 Offers Received.
Detached

Enquire about this property today

Fill out the form below and we will be in touch
Sign up for Property Alerts